Telefon  +48 517 446 226

Email  Ten adres pocztowy jest chroniony przed spamowaniem. Aby go zobaczyć, konieczne jest włączenie w przeglądarce obsługi JavaScript.

Nowy model umywalki

Mamy do zaprezentowania kolejną ciekawą umywalkę nablatową, a tak naprawdę ich całą serię prostokątnych modeli o różnych wymiarach, do każdej gustownej łazienki.

Umywalki nablatowe są w pełni wykonane z konglomeratu z białej płyty Solid Surface Akrilika o nazwie Glacier White A101. Zostały stworzone dla klientów lubiących odmienność, nowoczesny styl połączony z praktycznością.

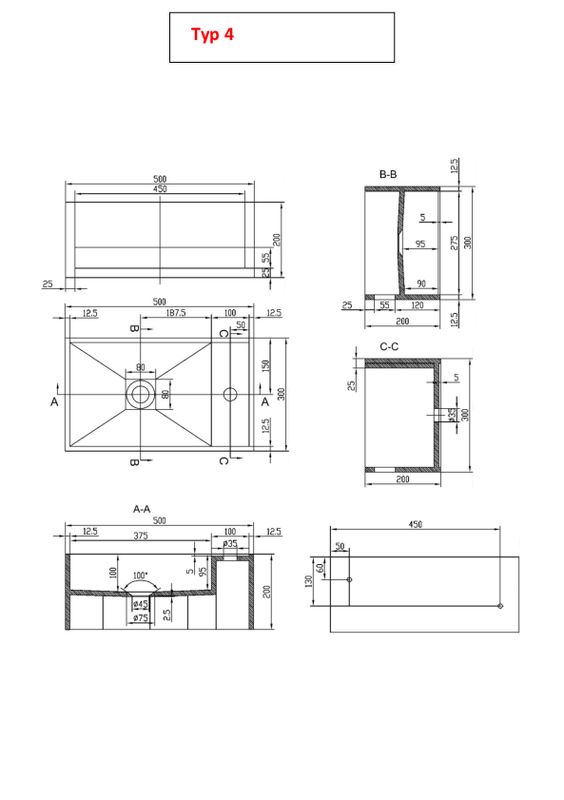
Umywalki charakteryzują się ukrytym odpływem za pośrednictwem gustownej maskownicy, która pozostawia niewielką szczelinę służącą do odpływu wody. Bardzo ciekawe rozwiązanie, które znacząco zmienia charakter i styl umywalki.

Opisywany wyżej odpływ liniowy, może występować w centralnej części umywalki lub jaj końcu. Dodatkowo stworzyliśmy umywalkę, która jest połączona z praktyczną półeczką np. na ręcznik.
Jako producent własnych umywalek, jesteśmy otwarci na Państwa potrzeby i propozycje związane z wymiarami, kształtami oraz ilościami.

Zachęcamy do zapoznania się z cała naszą gamą umywalek. Oczywiście zachęcamy również do napisania do nas na stronie w zakładce kontakt lub do bezpośredniego kontaktu, podczas którego postaramy się odpowiedzieć na Państwa pytania.

 

typ1-a
typ1-b
typ1-c
typ3-a
typ3-b
typ3-c
typ4-a
typ4-b
typ4-c
typ5-a-2
typ5-b-3
typ5-1
typ-2
typ-3
typ-4
typ-6
typ-1
typ-5